+7 (812) 964-44-25
с 9:00 до18:00 ежедневно
0
0
0 В корзине пока пусто

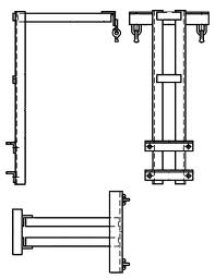
Траверса ТМ-23 (3.407.1-143.8.22)


Собственное производство
Траверса ТМ-23 (3.407.1-143.8.22)
Описание товара:
Траверса ТМ-23 (3.407.1-143.8.21)
Характеристики:
Наши предложения
Собственное производство
Типовой альбом
3.407.1-143.8
Вес (кг)
34.9
Размер (L,B,H)
720х550х1210мм
Покрытие
Горячее цинкование
Описание товара
Траверса ТМ-23 (3.407.1-143.8.22)

Траверсы ТМ-23 (проект 3.407.1-143.8.22) представляет собой Г-образную надставку и служит для увеления габарита ВЛ-10кВ.

К стойке СВ105 траверса крепится хомутом типа Х-1, а к стойке СВ110 при помощи хомута Х-42. 

Защитное покрытие - горячее цинкование.

Спецификация траверсы ТМ-23:

  • Уголок 80х80х6 ГОСТ 8509-86 2шт.
  • Уголок 70х70х5 ГОСТ 8509-86 2шт.
  • Уголок 90х90х7 ГОСТ 8509-86 1шт.
  • Уголок 50х50х5 ГОСТ 8509-86 2шт.
  • Полоса 6х50 ГОСТ 103-76 2шт.
  • Круг 16 ГОСТ 2590-71 2шт.
  • Серьга СРС-7-17 ГОСТ 2725-78 2шт.

Характеристики:
Прочие
Наши предложения Собственное производство
Производитель
Типовой альбом 3.407.1-143.8
Вес (кг) 34.9
Размер (L,B,H) 720х550х1210мм
Покрытие Горячее цинкование
Похожие товары (8)
Траверса ТМ-23 (3.407.1-143.8.22)
Товар добавлен в корзину
Итого:
Купить в один клик
Заполните данные для заказа
Запросить стоимость товара
Заполните данные для запроса цены
Запросить цену Запросить цену